Приточно-вытяжная установка с роторным рекуператором и ЕС-двигателем RWN-RR-ЕСБесплатный проект
Установка вентиляционная RWN-RR предназначена для общеобменной вентиляции помещений. Компактность установки позволяет располагать её под потолком или у стены, экономя при этом пространство.
Корпус установки выполнен из оцинкованной стали и по запросу, снаружи может быть покрыт порошковой краской. Стандартно панели в исполнении Compact имеют толщину 25 мм, а в исполнении Vertical и Classic - 50мм. Панели заполнены слоем теплошумоизоляции на основе негорючей минеральной ваты.
Роторный рекуператор имеет уникальную конструкцию, которая позволяет сохранять максимальный КПД с наименьшими аэродинамическими потерями.
Конструктивное исполнение:
Compact - воздуховоды в одной горизонтальной плоскости (подвесное исполнение).
Vertical - постаментное исполнение - патрубки расположены сверху.
Classic - постаментное (двухэтажное) исполнение - патрубки расположены с торцов, воздуховоды идут друг над другом.
Тип корпуса:
25m - бескаркасная конструкция с изоляцией 25 мм: Установка может располагаться вне помещения при температуре не ниже -20°С. Класс защиты – IP50.
50m - бескаркасная конструкция с изоляцией 50 мм: Установка может располагаться вне помещения при температуре не ниже -30°С. Класс защиты – IP50.
50c - каркасно-панельная конструкцию с изоляцией 50 мм: Установка может располагаться вне помещения при температуре не ниже -30°С. Класс защиты – IP50.
Габаритные размеры
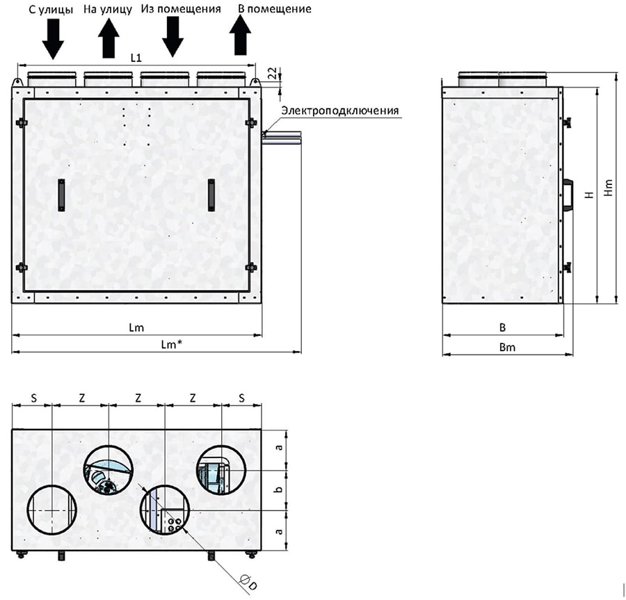
Габаритные размеры RWN-RR-300(25m)... RWN-RR-1000(25m) (мм) в исполнении корпуса Compact
Bm* - размер указан для водяного исполнения
Диаметр патрубков водяного нагревателя G ½“
|
Модель и типоразмер |
L |
B |
L1 |
B1 |
a |
b |
D |
Lm |
Bm |
Hm |
Масса, кг |
|
RWN-RR-300(25m)-ЕС-НЕ0,4-Compact(N) |
1020 |
647 |
1060 |
562 |
283 |
169 |
Ø160 |
1107 |
691 |
447 |
60 |
|
RWN-RR-400(25m)-ЕС-НЕ0,8-Compact(N) |
1020 |
647 |
1060 |
562 |
283 |
169 |
Ø200 |
1107 |
691 |
447 |
60 |
|
RWN-RR-500(25m)-ЕС-НЕ1,5-Compact(N) |
1020 |
647 |
1060 |
562 |
283 |
169 |
Ø200 |
1107 |
691 |
447 |
60 |
|
RWN-RR-600(25m)-ЕС-НЕ1,9-Compact(N) |
1020 |
647 |
1060 |
562 |
283 |
169 |
Ø200 |
1107 |
691 |
447 |
65 |
|
RWN-RR-1000(25m)-ЕС-НЕ1,8-Compact(N) |
1020 |
1020 |
1060 |
962 |
505 |
262 |
Ø250 |
1107 |
1060 |
447 |
115 |
|
RWN-RR-1000(25m)-ЕС-W-Compact(N) |
1020 |
1020 |
1060 |
962 |
505 |
262 |
Ø250 |
1107 |
1188 |
485 |
127 |
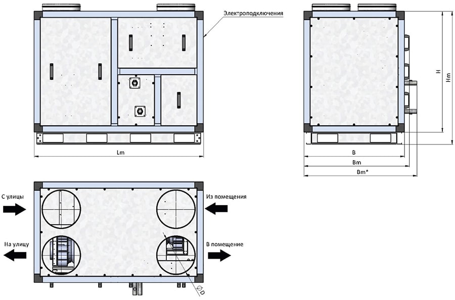
Габаритные размеры RWN-RR-1600(25m)... RWN-RR-3700(25m) (мм) в исполнении корпуса Compact

Bm* - размер указан для водяного исполнения
Диаметр патрубков водяного нагревателя G 1“
|
Модель и типоразмер |
B |
H |
L |
b1 x h1 |
b |
h |
Lm |
Bm |
Hm |
Масса, кг |
|
RWN-RR-1600(25m)-ЕС-НЕ5,5-Compact(N) |
1359 |
507 |
1347 |
500x300 |
652 |
254 |
1434 |
1435 |
547 |
209 |
|
RWN-RR-1600(25m)-ЕС-W-Compact(N) |
1359 |
507 |
1347 |
500x300 |
652 |
254 |
1434 |
1435 |
547 |
209 |
|
RWN-RR-2000(25m)-ЕС-НЕ7,5-Compact(N) |
1359 |
507 |
1547 |
600x350 |
652 |
254 |
1634 |
1435 |
547 |
223 |
|
RWN-RR-2000(25m)-ЕС-W-Compact(N) |
1359 |
507 |
1547 |
600x350 |
652 |
254 |
1634 |
1435 |
547 |
223 |
|
RWN-RR-2900(25m)-ЕС-НЕ7,5-Compact(N) |
1810 |
771 |
1730 |
700x400 |
877 |
386 |
1887 |
1814 |
812 |
282 |
|
RWN-RR-2900(25m)-ЕС-W-Compact(N) |
1810 |
771 |
1930 |
700x400 |
877 |
386 |
2087 |
1814 |
812 |
309 |
|
RWN-RR-3700(25m)-ЕС-НЕ11,5-Compact(N) |
1810 |
771 |
1730 |
800x500 |
877 |
386 |
1887 |
1814 |
812 |
285 |
|
RWN-RR-3700(25m)-ЕС-W-Compact(N) |
1810 |
771 |
1930 |
800x500 |
877 |
386 |
2087 |
1814 |
812 |
312 |
Габаритные размеры RWN-RR-300(50m)...RWN-RR-600(50m) (мм) в исполнении корпуса Vertical

Lm* - размер указан для водяного исполнения
Диаметр патрубков водяного нагревателя G ½“
|
Модель и типоразмер |
D |
B |
H |
L1 |
a |
b |
s |
z |
Lm |
Bm |
Hm |
Масса, кг |
|
RWN-RR-300(50m)-ЕС-НЕ0,4-Vertical(N) |
Ø160 |
516 |
904 |
993 |
170 |
170 |
168 |
236 |
1043 |
556 |
964 |
95 |
|
RWN-RR-400(50m)-ЕС-НЕ0,8-Vertical(N) |
Ø200 |
516 |
904 |
993 |
170 |
170 |
168 |
236 |
1043 |
556 |
964 |
95 |
|
RWN-RR-500(50m)-ЕС-НЕ1,5-Vertical(N) |
Ø200 |
516 |
904 |
993 |
170 |
170 |
168 |
236 |
1043 |
556 |
964 |
95 |
|
RWN-RR-500(50m)-ЕС-W-Vertical(N) |
Ø200 |
516 |
904 |
993 |
170 |
170 |
168 |
236 |
1150 |
556 |
964 |
112 |
|
RWN-RR-600(50m)-ЕС-НЕ1,9-Vertical(N) |
Ø200 |
516 |
904 |
993 |
170 |
170 |
168 |
236 |
1043 |
556 |
964 |
100 |
|
RWN-RR-600(50m)-ЕС-W-Vertical(N) |
Ø200 |
516 |
904 |
993 |
170 |
170 |
168 |
236 |
1150 |
556 |
964 |
117 |
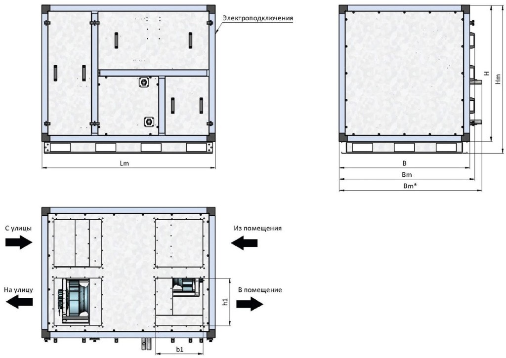
Габаритные размеры RWN-RR-1000(50c)...RWN-RR-1700(50c) (мм) в исполнении корпуса Vertical

Bm* - размер указан для водяного исполнения
Диаметр патрубков водяного нагревателя G 1“
|
Модель и типоразмер |
D |
B |
H |
Lm |
Bm |
Hm |
Масса, кг |
|
RWN-RR-1000(50c)-ЕС-НЕ1,8-Vertical(N) |
Ø250 |
815 |
930 |
1400 |
855 |
1090 |
172 |
|
RWN-RR-1000(50c)-ЕС-W-Vertical(N) |
Ø250 |
815 |
930 |
1400 |
925 |
1090 |
178 |
|
RWN-RR-1300(50c)-ЕС-НЕ2,3-Vertical(N) |
Ø315 |
832 |
930 |
1400 |
872 |
1090 |
200 |
|
RWN-RR-1300(50c)-ЕС-W-Vertical(N) |
Ø315 |
832 |
1000 |
1400 |
942 |
1160 |
205 |
|
RWN-RR-1700(50c)-ЕС-НЕ3,8-Vertical(N) |
Ø315 |
832 |
930 |
1400 |
872 |
1090 |
200 |
|
RWN-RR-1700(50c)-ЕС-W-Vertical(N) |
Ø315 |
832 |
1000 |
1400 |
942 |
1160 |
205 |
Габаритные размеры RWN-RR-2500(50c)...RWN-RR-3600(50c) (мм) в исполнении корпуса Vertical

Bm* - размер указан для водяного исполнения
Диаметр патрубков водяного нагревателя G 1“
|
Модель и типоразмер |
b1 x h1 |
B |
H |
Lm |
Bm |
Hm |
Масса, кг |
|
RWN-RR-2500(50c)-ЕС-НЕ4,5-Vertical(N) |
400x400 |
1100 |
1150 |
1460 |
1140 |
1250 |
290 |
|
RWN-RR-2700(50c)-ЕС-НЕ5,6-Vertical(N) |
400x400 |
1100 |
1150 |
1460 |
1140 |
1250 |
290 |
|
RWN-RR-2700(50c)-ЕС-W-Vertical(N) |
400x400 |
1100 |
1150 |
1510 |
1200 |
1250 |
290 |
|
RWN-RR-3600(50c)-ЕС-НЕ9,4-Vertical(N) |
500x400 |
1100 |
1180 |
1560 |
1140 |
1280 |
295 |
|
RWN-RR-3600(50c)-ЕС-W-Vertical(N) |
500x400 |
1100 |
1180 |
1680 |
1200 |
1280 |
300 |
Габаритные размеры RWN-RR-4000(50c)...RWN-RR-7400(50c) (мм) в исполнении корпуса Vertical

Bm* - размер указан для водяного исполнения
|
Модель и типоразмер |
b1 x h1 |
B |
H |
L1 |
L2 |
L3 |
Lm |
Bm |
Hm |
Масса, кг |
|||
|
L1 |
L2 |
L2 |
Общая |
||||||||||
|
RWN-RR-4000(50c)-ЕС-НЕ8,6-Vertical(N) |
500x600 |
1350 |
1410 |
740 |
640 |
700 |
2110 |
1410 |
1530 |
166 |
205 |
172 |
543 |
|
RWN-RR-4000(50c)-ЕС-W-Vertical(N) |
500x600 |
1350 |
1410 |
740 |
690 |
700 |
2160 |
1470 |
1530 |
166 |
220 |
172 |
558 |
|
RWN-RR-5500(50c)-ЕС(B500)-НЕ13,5-Vertical(N) RWN-RR-5500(50c)-ЕС(L400)-НЕ13,5-Vertical(N) |
500x600 |
1350 |
1410 |
740 |
640 |
700 |
2110 |
1410 |
1530 |
175 |
205 |
180 |
560 |
|
RWN-RR-6000(50c)-ЕС(B500)-НЕ16,1-Vertical(N) RWN-RR-6000(50c)-ЕС(L400)-НЕ16,1-Vertical(N) |
500x600 |
1350 |
1410 |
740 |
640 |
700 |
2110 |
1410 |
1530 |
175 |
205 |
180 |
560 |
|
RWN-RR-6000(50c)-ЕС(B500)-W-Vertical(N) RWN-RR-6000(50c)-ЕС(L400)-W-Vertical(N) |
500x600 |
1350 |
1410 |
740 |
690 |
700 |
2160 |
1470 |
1530 |
175 |
220 |
180 |
575 |
|
RWN-RR-6800(50c)-ЕС(B500)-НЕ21-Vertical(N) RWN-RR-6800(50c)-ЕС(L400)-НЕ21-Vertical(N) |
500x600 |
1350 |
1410 |
740 |
640 |
700 |
2110 |
1410 |
1530 |
175 |
205 |
180 |
560 |
|
RWN-RR-7400(50c)-ЕС(B500)-НЕ24-Vertical(N) RWN-RR-7400(50c)-ЕС(L400)-НЕ24-Vertical(N) |
600x600 |
1400 |
1510 |
740 |
640 |
700 |
2110 |
1460 |
1530 |
184 |
215 |
189 |
588 |
|
RWN-RR-7400(50c)-ЕС(B500)-W-Vertical(N) RWN-RR-7400(50c)-ЕС(L400)-W-Vertical(N) |
600x600 |
1400 |
1510 |
740 |
690 |
700 |
2160 |
1520 |
1530 |
184 |
230 |
189 |
603 |
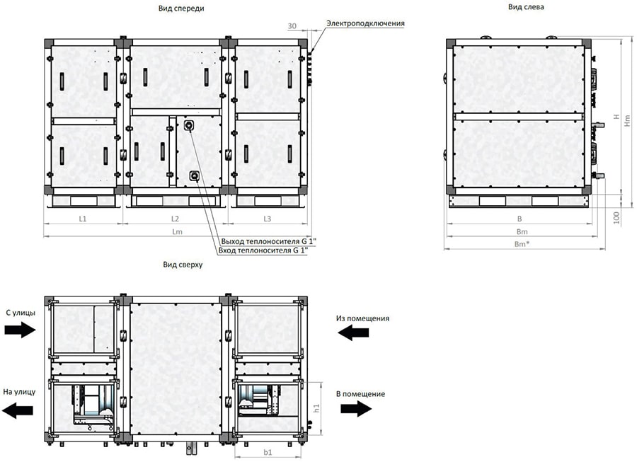
Габаритные размеры RWN-RR-300(50m)...RWN-RR-1700(50c) (мм) в исполнении корпуса Classic

Bm* - размер указан для водяного исполнения
Диаметр патрубков водяного нагревателя G ½
|
Модель и типоразмер |
D |
B |
H |
L |
S |
Lm |
Bm |
Hm |
Масса, кг |
|
RWN-RR-300(50c)-ЕС-НЕ0,4-Classic(N) |
Ø160 |
520 |
930 |
1250 |
418 |
1370 |
560 |
1030 |
112 |
|
RWN-RR-400(50c)-ЕС-НЕ0,8-Classic(N) |
Ø200 |
520 |
930 |
1250 |
418 |
1370 |
560 |
1030 |
112 |
|
RWN-RR-500(50c)-ЕС-НЕ1,5-Classic(N) |
Ø200 |
520 |
930 |
1250 |
418 |
1370 |
560 |
1030 |
118 |
|
RWN-RR-500(50c)-ЕС-W-Classic(N) |
Ø200 |
520 |
930 |
1400 |
418 |
1520 |
620 |
1030 |
124 |
|
RWN-RR-600(50c)-ЕС-НЕ1,9-Classic(N) |
Ø200 |
520 |
930 |
1250 |
418 |
1370 |
560 |
1030 |
120 |
|
RWN-RR-600(50c)-ЕС-W-Classic(N) |
Ø200 |
520 |
930 |
1400 |
418 |
1520 |
620 |
1030 |
126 |
|
RWN-RR-1000(50c)-ЕС-НЕ1,8-Classic(N) |
Ø250 |
832 |
930 |
1360 |
418 |
1480 |
872 |
1030 |
172 |
|
RWN-RR-1000(50c)-ЕС-W-Classic(N) |
Ø250 |
832 |
930 |
1400 |
418 |
1520 |
932 |
1030 |
172 |
|
RWN-RR-1300(50c)-ЕС-НЕ2,9-Classic(N) |
Ø315 |
832 |
930 |
1360 |
418 |
1480 |
872 |
1030 |
180 |
|
RWN-RR-1300(50c)-ЕС-W-Classic(N) |
Ø315 |
832 |
930 |
1400 |
418 |
1520 |
932 |
1030 |
180 |
|
RWN-RR-1700(50c)-ЕС-НЕ3,8-Classic(N) |
Ø315 |
832 |
930 |
1360 |
418 |
1480 |
872 |
1030 |
200 |
|
RWN-RR-1700(50c)-ЕС-W-Classic(N) |
Ø315 |
832 |
930 |
1400 |
418 |
1520 |
932 |
1030 |
200 |
Габаритные размеры RWN-RR-2500(50с)...RWN-RR-3600(50c) (мм) в исполнении корпуса Classic

Bm* - размер указан для водяного исполнения
Диаметр патрубков водяного нагревателя G 1“
|
Модель и типоразмер |
b1 x h1 |
B |
H |
Lm |
Bm |
Hm |
Масса, кг |
|
RWN-RR-2500(50c)-ЕС-НЕ4,5-Classic(N) |
600x300 |
1140 |
1150 |
1460 |
1180 |
1250 |
290 |
|
RWN-RR-2700(50c)-ЕС-НЕ5,6-Classic(N) |
600x300 |
1140 |
1150 |
1460 |
1180 |
1250 |
290 |
|
RWN-RR-2700(50c)-ЕС-W-Classic(N) |
600x300 |
1140 |
1150 |
1460 |
1240 |
1250 |
290 |
|
RWN-RR-3600(50c)-ЕС-НЕ9,4-Classic(N) |
600x350 |
1140 |
1180 |
1460 |
1180 |
1280 |
295 |
|
RWN-RR-3600(50c)-ЕС-W-Classic(N) |
600x350 |
1140 |
1180 |
1520 |
1240 |
1280 |
300 |
Габаритные размеры RWN-RR-4000(50с)...RWN-RR-7400(50c) (мм) в исполнении корпуса Classic

Bm* - размер указан для водяного исполнения
|
Модель и типоразмер |
b1 x h1 |
B |
H |
L1 |
L2 |
L3 |
Lm |
Bm |
Hm |
Масса, кг |
|||
|
L1 |
L2 |
L2 |
Общая |
||||||||||
|
RWN-RR-4000(50c)-ЕС-НЕ8,6-Classic(N) |
700x400 |
1350 |
1410 |
520 |
480 |
780 |
1810 |
1410 |
1530 |
112 |
175 |
182 |
469 |
|
RWN-RR-4000(50c)-ЕС-W-Classic(N) |
700x400 |
1350 |
1410 |
520 |
480 |
780 |
1810 |
1450 |
1530 |
112 |
175 |
192 |
479 |
|
RWN-RR-5500(50c)-ЕС(B500)-НЕ13,5-Classic(N) RWN-RR-5500(50c)-ЕС(L400)-НЕ13,5-Classic(N) |
800x500 |
1350 |
1410 |
610 |
480 |
870 |
1990 |
1410 |
1530 |
160 |
175 |
204 |
539 |
|
RWN-RR-6000(50c)-ЕС(B500)-НЕ16,1-Classic(N) RWN-RR-6000(50c)-ЕС(L400)-НЕ16,1-Classic(N)
|
800x500 |
1350 |
1410 |
610 |
480 |
870 |
1990 |
1410 |
1530 |
160 |
175 |
204 |
539 |
|
RWN-RR-6000(50c)-ЕС(B500)-W-Classic(N) RWN-RR-6000(50c)-ЕС(L400)-W-Classic(N)
|
800x500 |
1350 |
1410 |
610 |
480 |
870 |
1990 |
1450 |
1530 |
160 |
175 |
214 |
549 |
|
RWN-RR-6800(50c)-ЕС(B500)-НЕ21-Classic(N) RWN-RR-6800(50c)-ЕС(L400)-НЕ21-Classic(N)
|
1000x500 |
1350 |
1410 |
610 |
480 |
870 |
1990 |
1410 |
1530 |
160 |
175 |
204 |
539 |
|
RWN-RR-7400(50c)-ЕС(B500)-НЕ24-Classic(N) RWN-RR-7400(50c)-ЕС(L400)-НЕ24-Classic(N)
|
1000x500 |
1350 |
1410 |
610 |
480 |
870 |
1990 |
1410 |
1530 |
160 |
175 |
204 |
539 |
|
RWN-RR-7400(50c)-ЕС(B500)-W-Classic(N) RWN-RR-7400(50c)-ЕС(L400)-W-Classic(N)
|
1000x500 |
1400 |
1510 |
610 |
480 |
870 |
1990 |
1500 |
1630 |
178 |
194 |
238 |
610 |
Технические характеристики установок
|
Модель и типоразмер |
Расход воздуха, м3/ч |
Площадь помещения, м2 |
Напряжение, В |
Вентиляторы |
Мощность нагревателя, кВт |
Ток ТЭНа (на фазу), А |
Уровень шума Lp, дБ(A) |
|
|
Мощность, кВт |
Ток, А |
|||||||
|
RWN-RR-300-ЕС-НЕ0,4 |
300 |
120 |
1~220В |
0,17 |
0,8 |
0,4 |
2,6 |
41,1 |
|
RWN-RR-400-ЕС-НЕ0,8 |
400 |
160 |
1~220В |
0,34 |
2 |
0,8 |
5,3 |
39,8 |
|
RWN-RR-500-ЕС-НЕ1,5 |
500 |
200 |
1~220В |
0,34 |
2 |
1,5 |
10,5 |
39,8 |
|
RWN-RR-500-ЕС-W |
500 |
200 |
1~220В |
0,34 |
2 |
- |
- |
39,8 |
|
RWN-RR-600-ЕС-НЕ1,9 |
600 |
240 |
1~220В |
0,46 |
2,2 |
1,9 |
15,8 |
43 |
|
RWN-RR-600-ЕС-W |
600 |
240 |
1~220В |
0,46 |
2,2 |
- |
- |
43 |
|
RWN-RR-1000-ЕС-НЕ1,8 |
1 000 |
400 |
1~220В |
0,46 |
2,2 |
1,8 |
10,5 |
43 |
|
RWN-RR-1000-ЕС-W |
1 000 |
400 |
1~220В |
0,46 |
2,2 |
- |
- |
43 |
|
RWN-RR-1300-ЕС-НЕ2,9 |
1 300 |
520 |
1~220В |
0,98 |
4,1 |
2,9 |
15,8 |
42,5 |
|
RWN-RR-1300-ЕС-W |
1 300 |
520 |
1~220В |
0,98 |
4,1 |
- |
- |
42,5 |
|
RWN-RR-1600-ЕС-НЕ5,5* |
1 600 |
640 |
3~380В |
0,98 |
4,1 |
5,5 |
10,5 |
42,5 |
|
RWN-RR-1600-W* |
1 600 |
640 |
3~380В |
0,98 |
4,1 |
- |
- |
42,5 |
|
RWN-RR-1700-ЕС-НЕ3,8 |
1 700 |
680 |
1~220В |
1,18 |
4,2 |
3,8 |
21 |
42,5 |
|
RWN-RR-1700-ЕС-W |
1 700 |
680 |
1~220В |
1,18 |
4,2 |
- |
- |
42,5 |
|
RWN-RR-2000-ЕС-НЕ7,5* |
2 000 |
800 |
3~380В |
1,4 |
6,2 |
7,5 |
21 |
45,8 |
|
RWN-RR-2000-W* |
2 000 |
800 |
3~380В |
1,4 |
6,2 |
- |
- |
45,8 |
|
RWN-RR-2500-ЕС-НЕ4,5 |
2 500 |
1 000 |
3~380В |
1,4 |
6,2 |
4,5 |
10,5 |
45,8 |
|
RWN-RR-2700-ЕС-НЕ5,6 |
2 700 |
1 080 |
3~380В |
1,4 |
6,2 |
5,6 |
15,8 |
45,8 |
|
RWN-RR-2700-ЕС-W |
2 700 |
1 080 |
1~220В |
1,4 |
6,2 |
- |
- |
45,8 |
|
RWN-RR-2900-ЕС-НЕ7,5* |
2 900 |
1160 |
3~380В |
1,4 |
6,2 |
7,5 |
21 |
45,8 |
|
RWN-RR-2900-ЕС-W* |
2 900 |
1160 |
1~220В |
1,4 |
6,2 |
- |
- |
45,8 |
|
RWN-RR-3600-ЕС-НЕ9,4 |
3 600 |
1 440 |
3~380В |
2,2 |
3,2 |
9,4 |
21 |
41,8 |
|
RWN-RR-3600-ЕС-W |
3 600 |
1 440 |
3~380В |
2,2 |
3,2 |
- |
- |
41,8 |
|
RWN-RR-3700-ЕС-НЕ11,5* |
3 700 |
1480 |
3~380В |
2,2 |
3,2 |
11,5 |
31,5 |
41,8 |
|
RWN-RR-3700-ЕС-W* |
3 700 |
1480 |
3~380В |
2,2 |
3,2 |
- |
- |
41,8 |
|
RWN-RR-4000-ЕС-НЕ8,6 |
4 000 |
1 600 |
3~380В |
2,2 |
3,2 |
8,6 |
21 |
41,8 |
|
RWN-RR-4000-ЕС-W |
4 000 |
1 600 |
3~380В |
2,2 |
3,2 |
- |
- |
41,8 |
|
RWN-RR-5500-ЕС(B500)-НЕ13,5 |
5 500 |
2 200 |
3~380В |
8,6 |
15,6 |
13,5 |
31,5 |
53,1 |
|
RWN-RR-5500-ЕС(L400)-НЕ13,5 |
5 500 |
2 200 |
3~380В |
6,62 |
8,4 |
13,5 |
31,5 |
49,3 |
|
RWN-RR-6000-ЕС(B500)-НЕ16,1 |
6 000 |
2 400 |
3~380В |
8,6 |
15,6 |
16,1 |
31,5 |
53,1 |
|
RWN-RR-6000-ЕС(B500)-W |
6 000 |
2 400 |
3~380В |
8,6 |
15,6 |
- |
- |
53,1 |
|
RWN-RR-6000-ЕС(L400)-НЕ16,1 |
6 000 |
2 400 |
3~380В |
6,62 |
8,4 |
16,1 |
31,5 |
49,3 |
|
RWN-RR-6000-ЕС(L400)-W |
6 000 |
2 400 |
3~380В |
6,62 |
8,4 |
- |
- |
49,3 |
|
RWN-RR-6800-ЕС(B500)-НЕ21 |
6 800 |
2 720 |
3~380В |
8,6 |
15,6 |
21 |
42 |
53,1 |
|
RWN-RR-6800-ЕС(L400)-НЕ21 |
6 800 |
2 720 |
3~380В |
6,62 |
8,4 |
21 |
42 |
49,3 |
|
RWN-RR-7400-ЕС(B500)-НЕ24 |
7 400 |
2 960 |
3~380В |
8,6 |
15,6 |
24 |
52,5 |
53,1 |
|
RWN-RR-7400-ЕС(B500)-W |
7 400 |
2 960 |
3~380В |
8,6 |
15,6 |
- |
- |
53,1 |
|
RWN-RR-7400-ЕС(L400)-НЕ24 |
7 400 |
2 960 |
3~380В |
6,62 |
8,4 |
24 |
52,5 |
49,3 |
|
RWN-RR-7400-ЕС(L400)-W |
7 400 |
2 960 |
3~380В |
6,62 |
8,4 |
- |
- |
49,3 |
* Только в исполнении корпуса Compact.
Lp,
дБ(A) - Уровень
звукового давления в окружение на расстоянии 3 метров.
Площадь помещения рассчитана из условия обеспечения
однократного воздухообмена при высоте потолков 2,5 метра.
Электрический нагреватель выполнен на полупроводниковой
технологии PTC (Positive Temperature Coefficient) и имеет эффект
саморегуляции, то есть его мощность меняется в зависимости от скорости воздуха,
который его обдувает. В связи с этим реальная мощность может отличаться от
номинального значения, указанного в таблице.
Если, при низких температурах наружного воздуха,
мощности нагревателя недостаточно чтобы достичь желаемую температуру приточного
воздуха, то происходит автоматическое снижение производительности вентилятора.
Аэродинамические характеристики


Не представленные в наличии модели доступны к поставке под заказ
Оповестить о поступлении
Всю необходимую информацию также можно получить по телефону «горячей линии»
+ 7 800 200 93 96или по телефону
+7 800 505 08 67 получить консультацию